Granny Glat
A Smart, Stylish Granny Flat That Fits Every Stage of Life
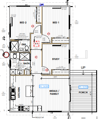
This thoughtfully designed granny flat is the ideal solution for multi-generational living, independent family members, or a clever investment opportunity.
With two spacious bedrooms, a dedicated study nook, and an open-plan living area, it delivers the comfort and functionality of a full-sized home—just in a more manageable footprint.
What Makes It Stand Out
- Open-plan kitchen, meals, and family area filled with natural light.
- Two well-sized bedrooms with built-in robes and easy bathroom access.
- A study area ideal for remote work or study.
- Step-free entry and hobless showers, perfect for accessibility and long-term use.
- Merbau decked front porch, creating inviting outdoor space.
- Durable, easy-care finishes, including vinyl plank floors and tiled wet areas.
- Energy-smart features, including full insulation, Unicote roof, and quality cladding.
Whether you’re adding value to your property, or supporting loved ones,  this granny flat offers smart design and timeless functionality.
Contact our new home team today for a quote.
Our Belford 202 and Belford 220 designs are perfect for families looking for a stylish and functional home that embraces open-plan living. Thoughtfully designed to suit acreage lifestyles, both layouts offer a seamless blend of comfort, space, and practicality.
With generous living areas, well-appointed kitchens, and beautifully designed bedrooms, these homes provide the perfect balance between relaxation and entertaining. The Belford 202 offers a smart, efficient layout, while the Belford 220 provides extra space for growing families, ensuring there’s room to spread out and enjoy.


