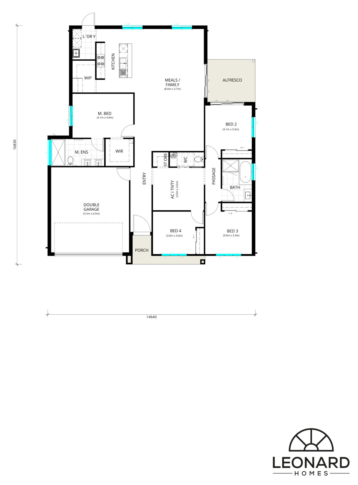
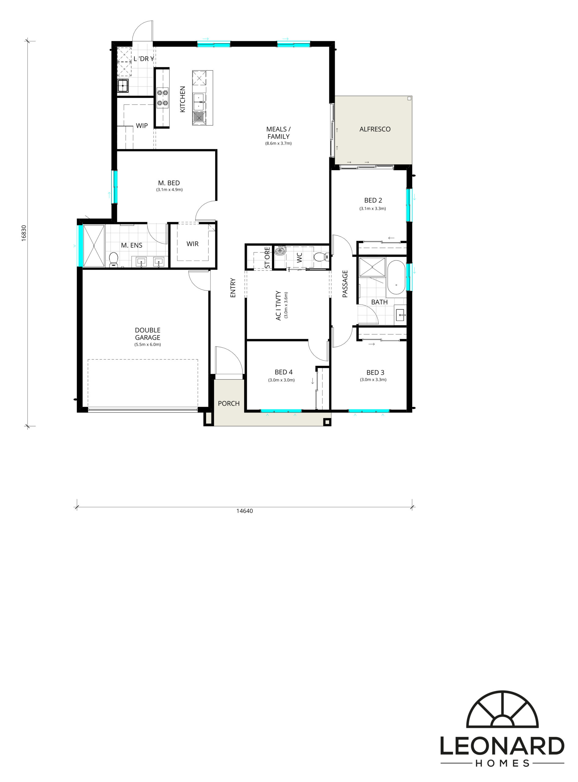
Greenbank
Discover the Greenbank 221 – the epitome of practical living, designed for modern families. With four spacious bedrooms, two full bathrooms, and a convenient separate powder room, this home ensures comfort for everyone. The thoughtful layout includes a dedicated child’s retreat, providing a perfect space for play and relaxation. The heart of the home is the open-plan kitchen, living, and dining area, seamlessly blending functionality with style. Whether you’re entertaining or enjoying quiet family moments, this home delivers the perfect balance of space, comfort, and convenience.
Key Features:
-
14.64m Design Width
-
Choice of two facades: Classic Facade or
-
Modern Facade.
-
4 Bedrooms
-
Open Plan Living
Contact our new home team today for a quote.
Our Belford 202 and Belford 220 designs are perfect for families looking for a stylish and functional home that embraces open-plan living. Thoughtfully designed to suit acreage lifestyles, both layouts offer a seamless blend of comfort, space, and practicality.
With generous living areas, well-appointed kitchens, and beautifully designed bedrooms, these homes provide the perfect balance between relaxation and entertaining. The Belford 202 offers a smart, efficient layout, while the Belford 220 provides extra space for growing families, ensuring there’s room to spread out and enjoy.








