Wishart
Custom Wishart Design
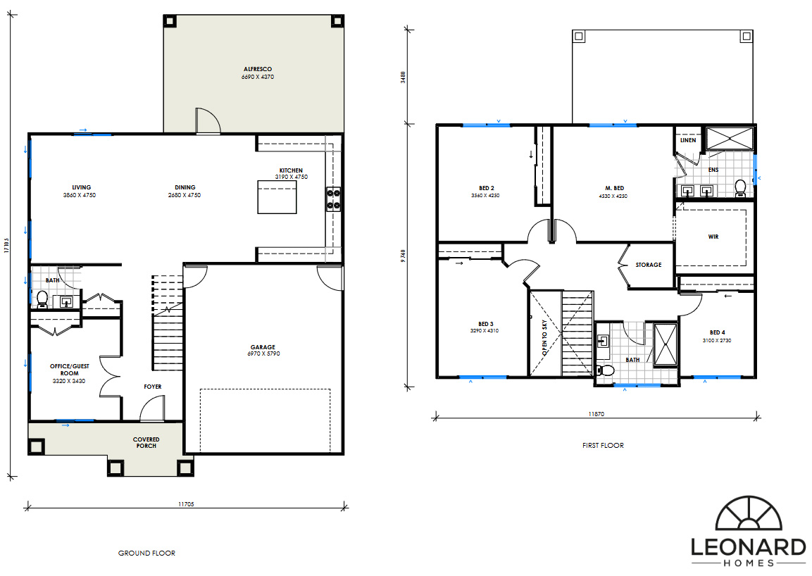
This stunning design began as a standard Wishart 280 and was expanded into a magnificent home tailored to fit the surrounding forests and nature views. The layout was crafted to meet the family’s budget and living requirements while accommodating the challenging block with slope stability designs and extensive engineering work.
Key features include:
- A substantial cut and fill with two tiers of retaining walls.
- A Hampton-style kitchen with a walk-in pantry.
- Upgraded porcelain tiles throughout.
- Extra-high ceilings.
- Two living areas.
- Four bedrooms, 3.5 bathrooms, and a two-car garage.
- Two alfresco/outdoor living spaces.
At Leonard Homes, we can customise any house to suit any block. If you’re thinking about building, please give us a call to discuss this process.
Contact our new home team today for a quote.
Our Belford 202 and Belford 220 designs are perfect for families looking for a stylish and functional home that embraces open-plan living. Thoughtfully designed to suit acreage lifestyles, both layouts offer a seamless blend of comfort, space, and practicality.
With generous living areas, well-appointed kitchens, and beautifully designed bedrooms, these homes provide the perfect balance between relaxation and entertaining. The Belford 202 offers a smart, efficient layout, while the Belford 220 provides extra space for growing families, ensuring there’s room to spread out and enjoy.








