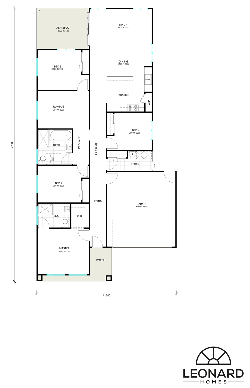
Heathwood
The HEATHWOOD 206 has been designed with space and family living in mind. This design includes four-bedroom, separate rumpus/media room, open plan living and dining and double car garage. The kitchen flows seamlessly onto the main living/dining and outdoor alfresco, perfect for entertaining.
Key Features:
- Design width is 11.24mÂ
- Four bedrooms
- Larger entertaining kitchen with open plan living and diningÂ
- Feature Hamptons cladding with stone pillarsÂ
Contact our new home team today for a quote.
Our Belford 202 and Belford 220 designs are perfect for families looking for a stylish and functional home that embraces open-plan living. Thoughtfully designed to suit acreage lifestyles, both layouts offer a seamless blend of comfort, space, and practicality.
With generous living areas, well-appointed kitchens, and beautifully designed bedrooms, these homes provide the perfect balance between relaxation and entertaining. The Belford 202 offers a smart, efficient layout, while the Belford 220 provides extra space for growing families, ensuring there’s room to spread out and enjoy.








