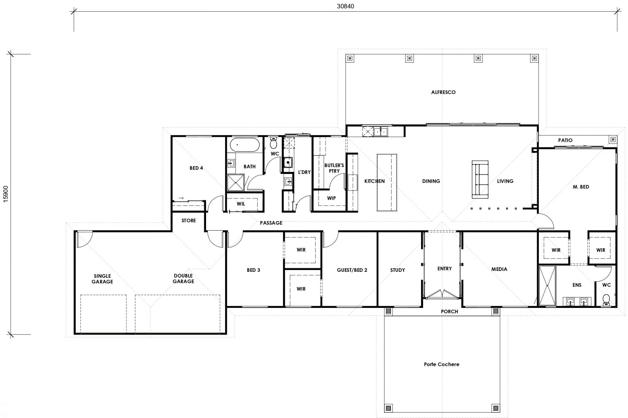
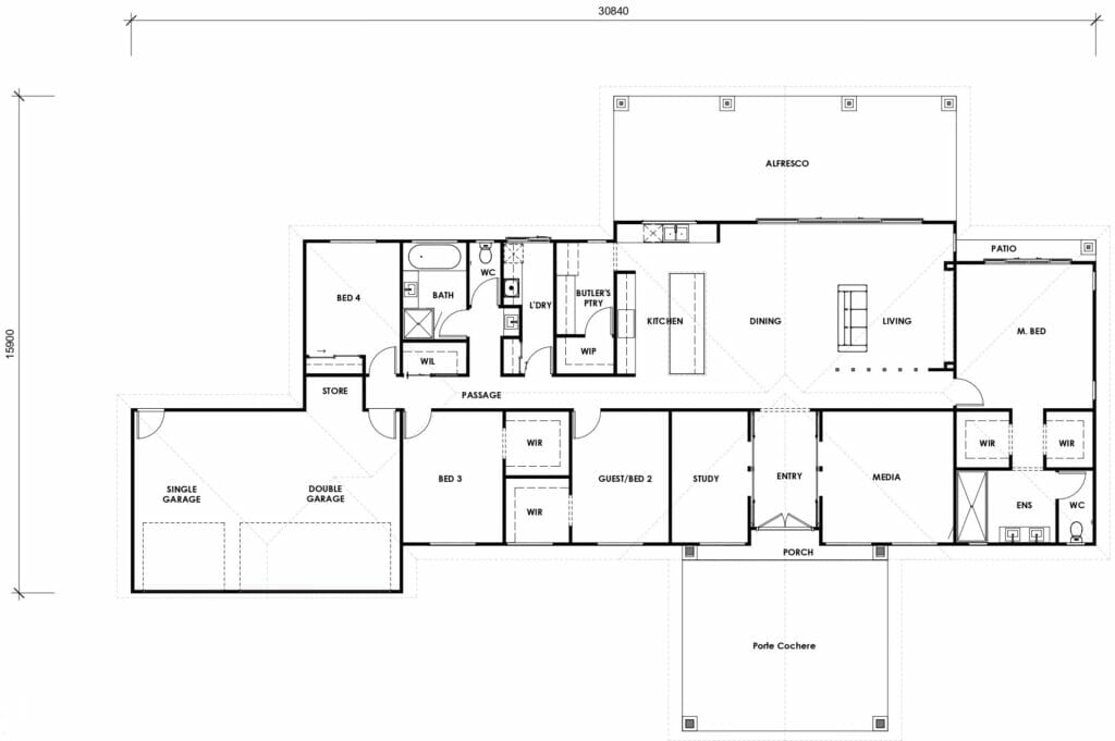
Montville
The MONTVILLE 372 is the ultimate expansive acreage home with show stopping Porte Cochere and three bay garage. The raked ceilings through the living area create a great sense of space for family living.
Key Features:
- Design is great for acreage living
- Four bedrooms
- Large open plan kitchen with seamless flow onto the living, dining and alfresco
- Feature Hamptons cladding with stone pillars
- Porte Cochere and three bay garage
House Width: 30.84m
House Length: 15.90m
Contact our new home team today for a quote.Â
Contact our new home team today for a quote.
Our Belford 202 and Belford 220 designs are perfect for families looking for a stylish and functional home that embraces open-plan living. Thoughtfully designed to suit acreage lifestyles, both layouts offer a seamless blend of comfort, space, and practicality.
With generous living areas, well-appointed kitchens, and beautifully designed bedrooms, these homes provide the perfect balance between relaxation and entertaining. The Belford 202 offers a smart, efficient layout, while the Belford 220 provides extra space for growing families, ensuring there’s room to spread out and enjoy.








