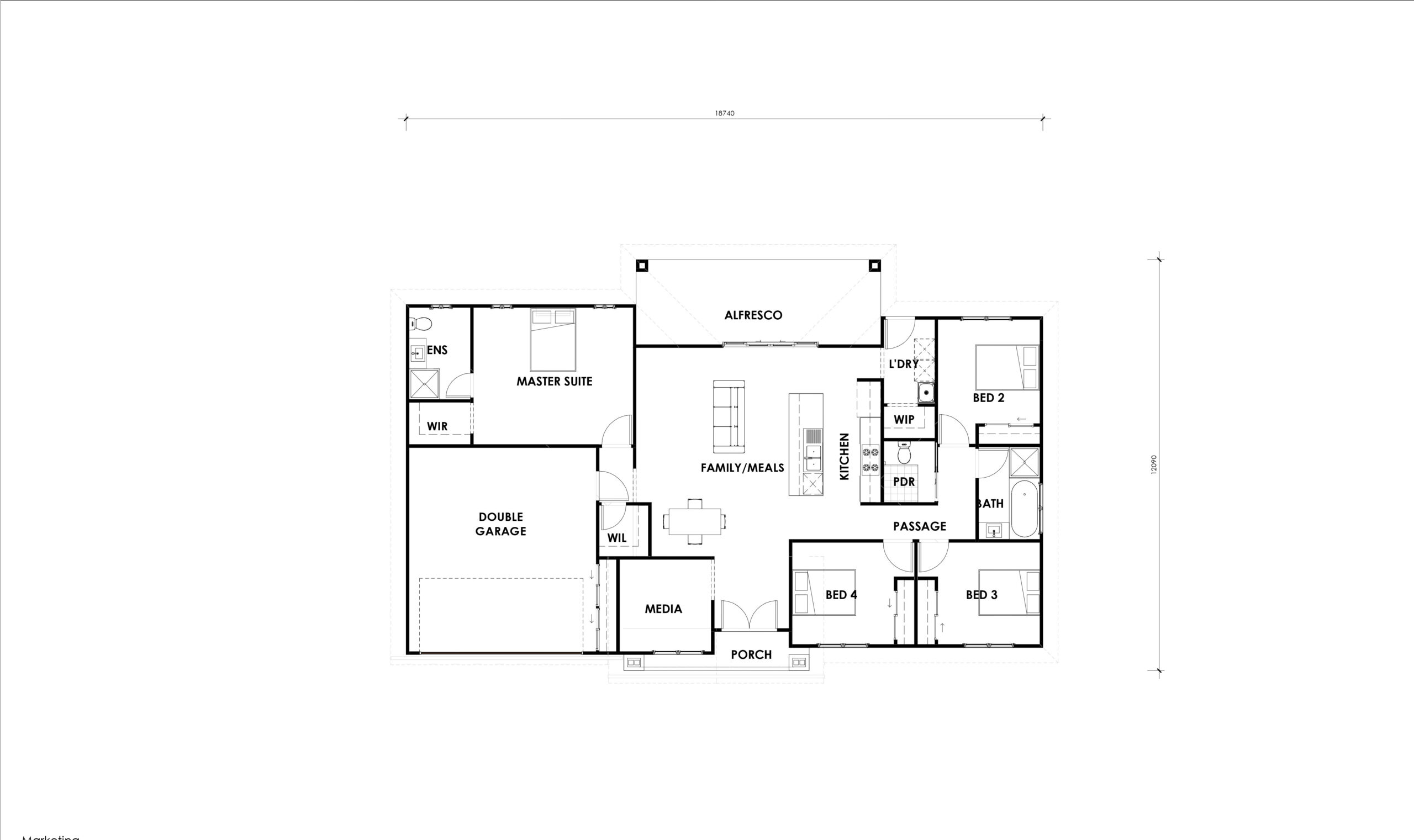
Belford
The BELFORD 202 has all the family features and more. A family retreat featuring four bedrooms, media room, open plan living, entertaining kitchen and resort sized Master Suite.
Key Features:
- Design is great for wide lots or acreage living
- Four bedrooms
- Large open plan kitchen with seamless flow onto the living, dining and alfresco
- Double garage
- Ample storage for family living
House Width:Â 18.74m
House Length: 12.09m
Contact our new home team today for a quote.Â
Contact our new home team today for a quote.
Our Belford 202 and Belford 220 designs are perfect for families looking for a stylish and functional home that embraces open-plan living. Thoughtfully designed to suit acreage lifestyles, both layouts offer a seamless blend of comfort, space, and practicality.
With generous living areas, well-appointed kitchens, and beautifully designed bedrooms, these homes provide the perfect balance between relaxation and entertaining. The Belford 202 offers a smart, efficient layout, while the Belford 220 provides extra space for growing families, ensuring there’s room to spread out and enjoy.








