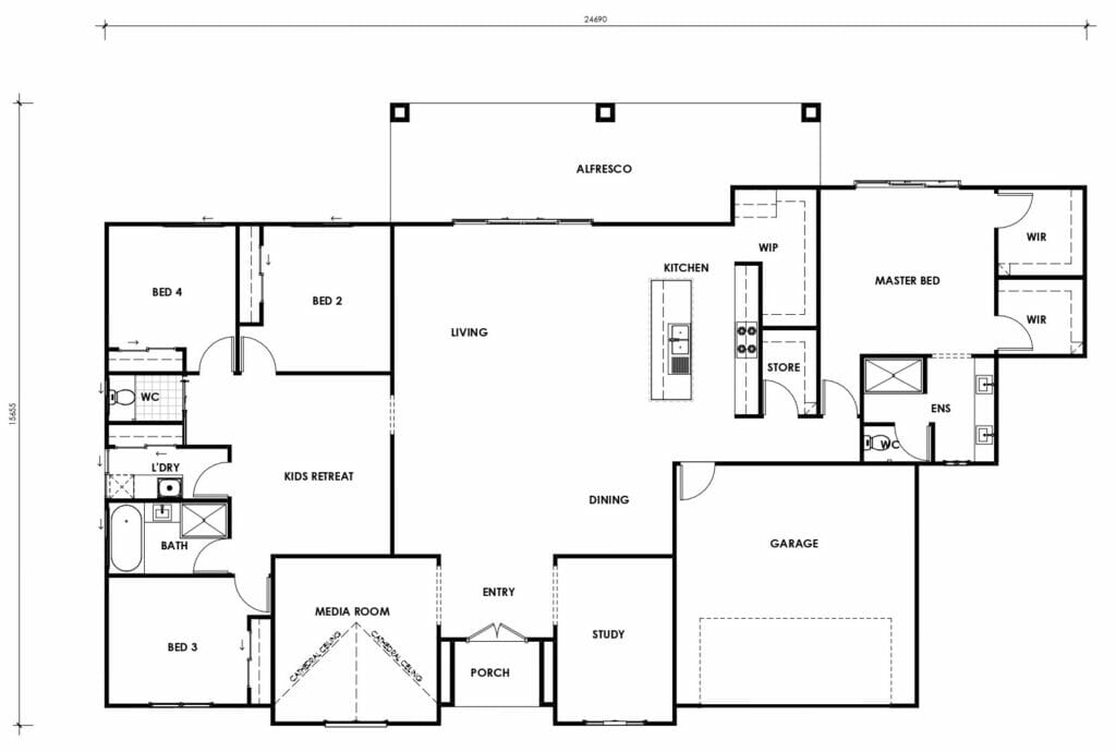
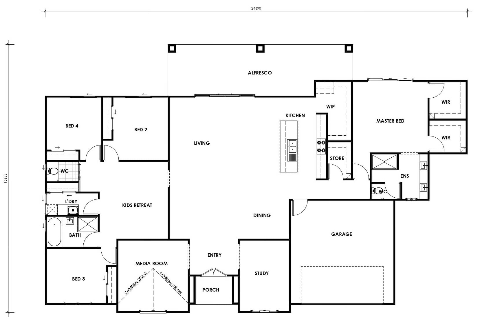
Springbrook
The SPRINGBROOK 311 is the ultimate family home. It includes four bedrooms, media room, separate study and kids retreat. The federation façade features a large arched window and vertical cladding for striking street appeal.
Key Features:
- Design width is 24.69m, great for large acreage blocks
- Four bedroomsÂ
- Media room and studyÂ
- Open plan kitchen with large island benchtop and walk in pantryÂ
- Secluded master bedroom with walk in robe and ensuiteÂ
- Feature facade with arched window and vertical cladding
Contact our new home team today for a quote.
Our Belford 202 and Belford 220 designs are perfect for families looking for a stylish and functional home that embraces open-plan living. Thoughtfully designed to suit acreage lifestyles, both layouts offer a seamless blend of comfort, space, and practicality.
With generous living areas, well-appointed kitchens, and beautifully designed bedrooms, these homes provide the perfect balance between relaxation and entertaining. The Belford 202 offers a smart, efficient layout, while the Belford 220 provides extra space for growing families, ensuring there’s room to spread out and enjoy.








