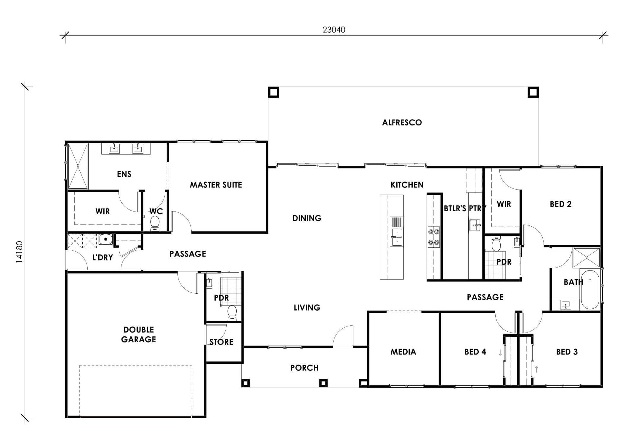
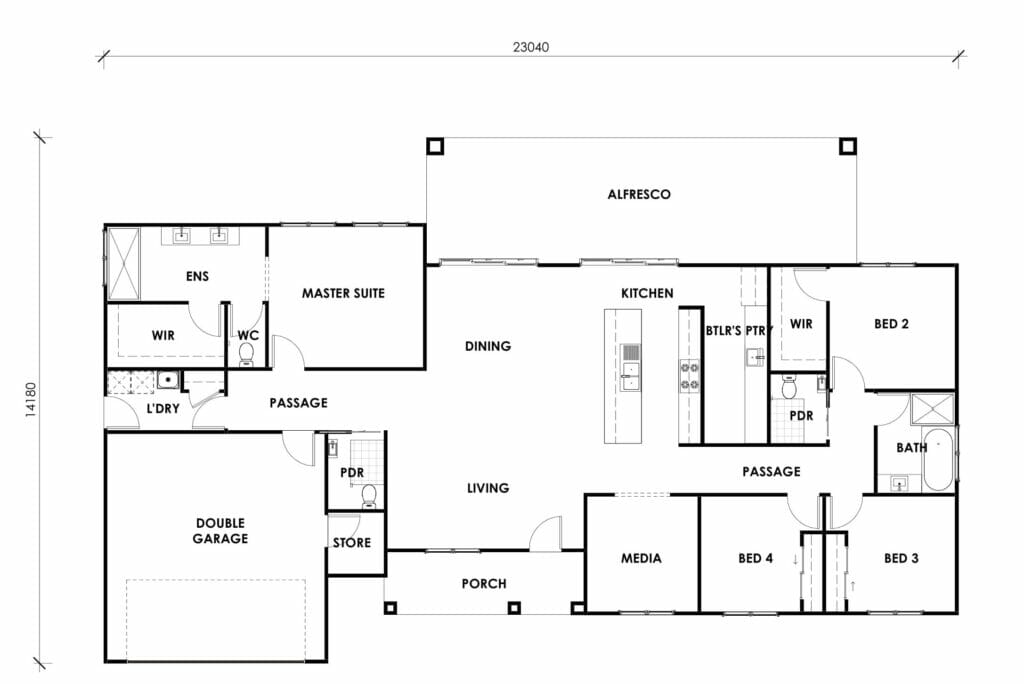
Pullenvale
The PULLENVALE 276 features a modern farmhouse façade with a floor plan to suite growing family. Including a central kitchen, living and dining with four bedrooms and a separate media room. The spacious master suite is tucked away for optimum privacy.Â
The striking vertical panel cladding adds a point of difference to make the Pullenvale ultimately unique.Â
Key Features:
- Design width is 23.04m, great for large acreage blocks
- Four bedroomsÂ
- Media roomÂ
- Open plan kitchen with large island benchtop and walk in pantryÂ
- Feature farmhouse facade with feature gables and stone pillars
Contact our new home team today for a quote.
Our Belford 202 and Belford 220 designs are perfect for families looking for a stylish and functional home that embraces open-plan living. Thoughtfully designed to suit acreage lifestyles, both layouts offer a seamless blend of comfort, space, and practicality.
With generous living areas, well-appointed kitchens, and beautifully designed bedrooms, these homes provide the perfect balance between relaxation and entertaining. The Belford 202 offers a smart, efficient layout, while the Belford 220 provides extra space for growing families, ensuring there’s room to spread out and enjoy.








